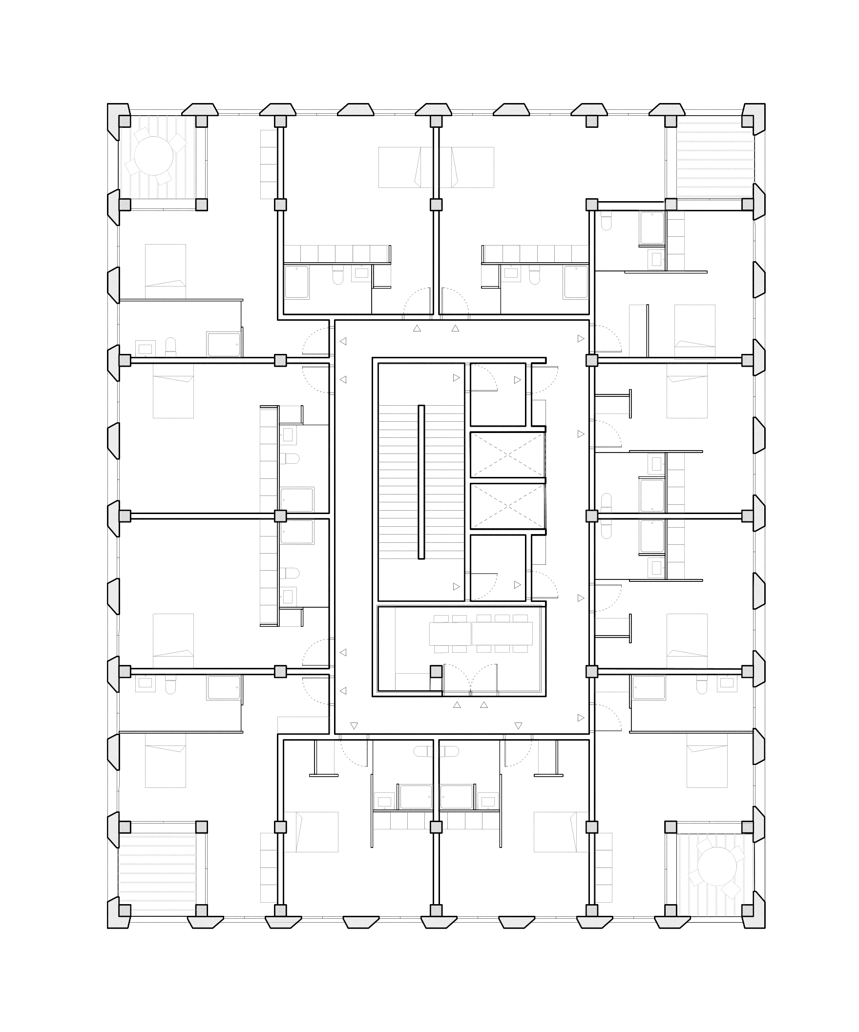
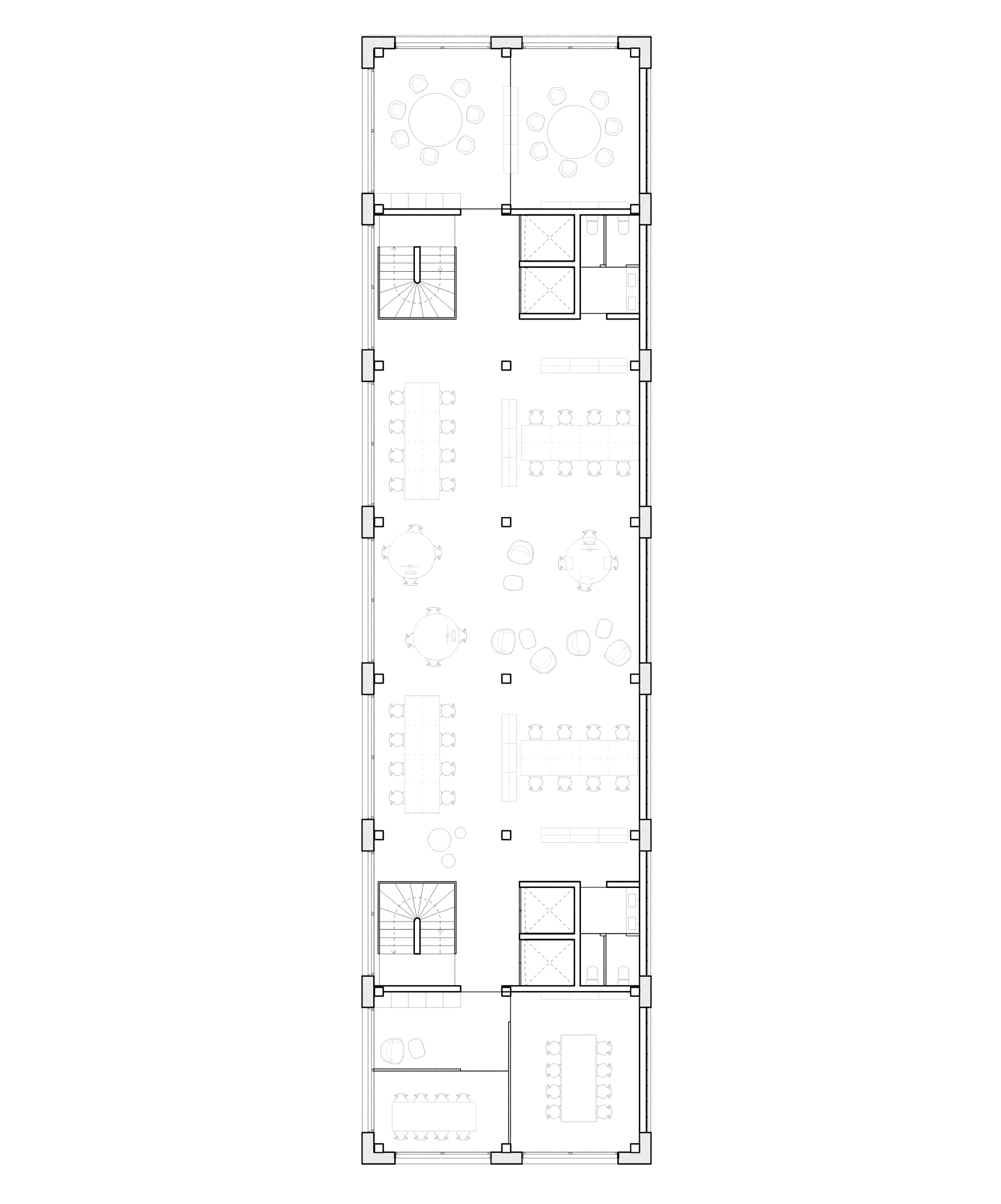
| programme | Réaménagement de l’avenue Jean Moulin et développement d’un quartier mixte aux abords de la dalle. Elaboration de 2 bâtiments de co-living et 1 bâtiment de coworking. | |
| moa | NEXITY | |
| lieu | Puteaux - La Défense | |
| surface | 11 000 m² lot B1, 5 et 6 - Aménagement 1 HA | |
| coût | 24 M €HT | |
| année | 2023 | |
| phase | Dialogue compétitif, classé sans suite 2023 | |
| certification | RE 2020 - NF Habitat HQE - E3C1 | |
| équipe | Collaboration STUDIO LE BON avec Septembre, Lafayette (architecte-urbaniste), Studio Gang, , New South (architectes), Altitude 35 (paysagiste), Zefco (environnement), Setec (VRD), L’Effet Urbain (montage), EPPC (programmation) | |
| texte | La reconversion de l’avenue Jean Moulin en un boulevard urbain apaisé, est un enjeux majeur pour ce site aux abords de la dalle de La Défense. En réadressant des programmes de part et d’autre de l’avenue et en réorganisant les flux (piétons cycles, TC et voitures), notre projet propose une nouvelle porte d’entrée sur la dalle de la Défense depuis le centre-ville de Puteaux. |
|
| crédits | Images LOTO ARCHILAB |
Fondé en 2023 par Aymeric Le Bon, STUDIO LE BON est une agence d’architecture et d’urbanisme qui défend une pensée transcalaire pour élaborer ses projets.

L’habitat étant au cœur de sa pratique, le studio s’engage avec enthousiasme dans la conception et la transformation de toute forme et échelle d’habitat.
Fort de plus de 10 ans d’expérience au sein d’agences internationales telles que LIN à Berlin, l’AUC (lauréat du Grand Prix de l’urbanisme 2021) et Lambert Lénack Architectes Urbanistes, Aymeric Le Bon a acquis une expertise dans la direction de projets divers et complexes.
Au cours de ces collaborations, il a pu développer une solide maîtrise en urbanisme stratégique et opérationnel, en maîtrise d’œuvre urbaine, tout en étant impliqué dans la conception et dans la construction de logements et d’équipements livrés : Bagneux L5 (9 240 m² sdp, 148 logements en accession répartis sur 4 bâtiments, mission complète), Ivry 3J1 (5 540 m² sdp, 45 logements sociaux et 38 logements en accession, mission complète), Massy Migaux (2800 m² SDP, 128 chambres d’hôtel), l’aménagement urbain et paysager de la Porte de Vincennes (2 hectares de travaux livrés). Son rôle de directeur de projets lui a permis développer une grande rigueur de travail, une capacité de synthèse et une expertise dans la coordination des équipes.
Actuellement, le studio est engagé dans le développement de plusieurs projets, dont un ensemble de 34 logements en accession à la Courneuve en collaboration avec l’agence Septembre (concours remporté en 2023, PC en RE2020), la conception de deux maisons individuelles de 300 m² à Montreuil (études en cours), un cabinet de consultation de psychiatrie (livré en 2024), en parallèle de plusieurs transformations d’appartements en région parisienne.
contact
siège social : 50 rue Victor Hugo Pantin 93500
bureau : 49 bvd Chapelle Paris 75010
studio@studiolebon.fr
06 37 55 64 07
instagram
crédits
Photographies : Charly Broyez, Benoit Diacre, Giaime Meloni
Design graphique & développement site : Mattieu Moreau Domecq
mentions légales
Copyright 2025, STUDIO LE BON. La structure générale, ainsi que les logiciels, textes, images animées ou fixes, sons, savoir-faire, dessins, graphismes, photographies et tous autres éléments composant ce site web sont de l’utilisation exclusive de la société Studio Le Bon. Toute représentation totale ou partielle de ce site, par quelques procédés que ce soient, sans autorisation expresse de la société STUDIO LE BON est interdite.